Skip to Content
Advanced Search

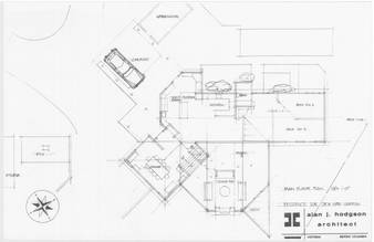
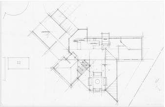
Warren Residence, Saltspring Island B.C. [Project: 382-01-89]

Project material consists of one large folder of architectural drawings and other material pertaining to the design of the Warren Residence, located at 120 Cottonwood Road on Saltspring Island, B.C. The Warrens are identified as Dr. James D. Warren and Joan Warren. Included are cadastral plans; floor plans; site plans; foundation plans; roof plans; ceiling plans; elevations; section drawings; detail drawings; schedules; electrical plans; plumbing plans; sketches; and other material produces at various stages of the design process.

In Collection:
Creator Subject Language Identifier
  • Project: 382-01-89
Date created Resource type Rights statement Extent
  • 135 architectural drawings and other material
Geographic Coverage Coordinates
  • 48.834610, -123.472385
Physical Repository Collection
  • Alan Hodgson Collection
Provider Sponsor
  • Digitized through the support of the BC History Digitization Program, Irving K. Barber Learning Centre, University of British Columbia.
Genre Archival item identifier
  • Accession Number: 2020-002
Fonds title Fonds identifier Is referenced by Date digitized
  • December 2021
Technical note
  • Digitized at 300 dpi by The Crowley Company. Metadata by Matt Innes.
Rights
  • This material is made available on this site for research and private study only.
DOI