Skip to Content
Advanced Search

Craigflower Manor [Project: 096-11-67]

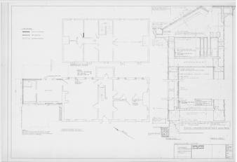
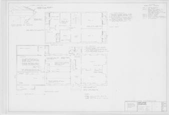
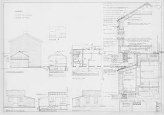
Project material consists of one large folder of architectural drawings and other material pertaining to the restoration of the Craigflower Manor site, located at 1801 Admirals Road in View Royal, B.C. The restoration project appears to have been largely handled by Peter Cotton. Included are site plans; floor plans; crawl-space plans; demolition plans; elevations; section drawings; detail drawings; a cadastral plan; electrical plans; and other material produced at various stages of the restoration process. Craigflower Manor was designated a National Historic Site in 1964.

In Collection:
Creator Subject Language Identifier
  • Project: 096-11-67
Date created Resource type Rights statement Extent
  • 15 architectural drawings and other material
Geographic Coverage Coordinates
  • 48.452156, -123.424848
Physical Repository Collection
  • Alan Hodgson Collection
Provider Sponsor
  • Digitized through the support of the BC History Digitization Program, Irving K. Barber Learning Centre, University of British Columbia.
Genre Archival item identifier
  • Accession Number: 2020-002
Fonds title Fonds identifier Is referenced by Date digitized
  • December 2021
Technical note
  • Digitized at 300 dpi by The Crowley Company. Metadata by Matt Innes.
Rights
  • This material is made available on this site for research and private study only.
DOI